
9
maintenance to reduce the risk of electric shock or damage
to persons.
Remove the ller strip and carefully remove the glass 1.
or trim assembly from the unit.
Carefully remove the media from the front tray.2.
Wall Mount:3. Remove the replace assembly from the
wall by carefully lifting it upward, releasing it from the
anges of the wall-mounting bracket. (Figure 4).
Pedestal Mount: Carefully lay the unit face down on a
at surface and remove the six (6) screws holding the
pedestal to the unit. (Figure 5)
Carefully set the unit upright on a at working surface.4.
!NOTE: If necessary, lay a protective barrier between
the unit and your work surface, (i.e. cloth, cardboard, thick
plastic) to avoid scratching your work surface.
On the right end, with the controls, remove the seven5.
(7) screws around the outside of the end panel. (Figure
5)
Lay unit on its back and remove the remaining nine (9)6.
screws from the end panel.
Remove the end panel being careful not to add any7.
strain to the wires connecting to the controls.
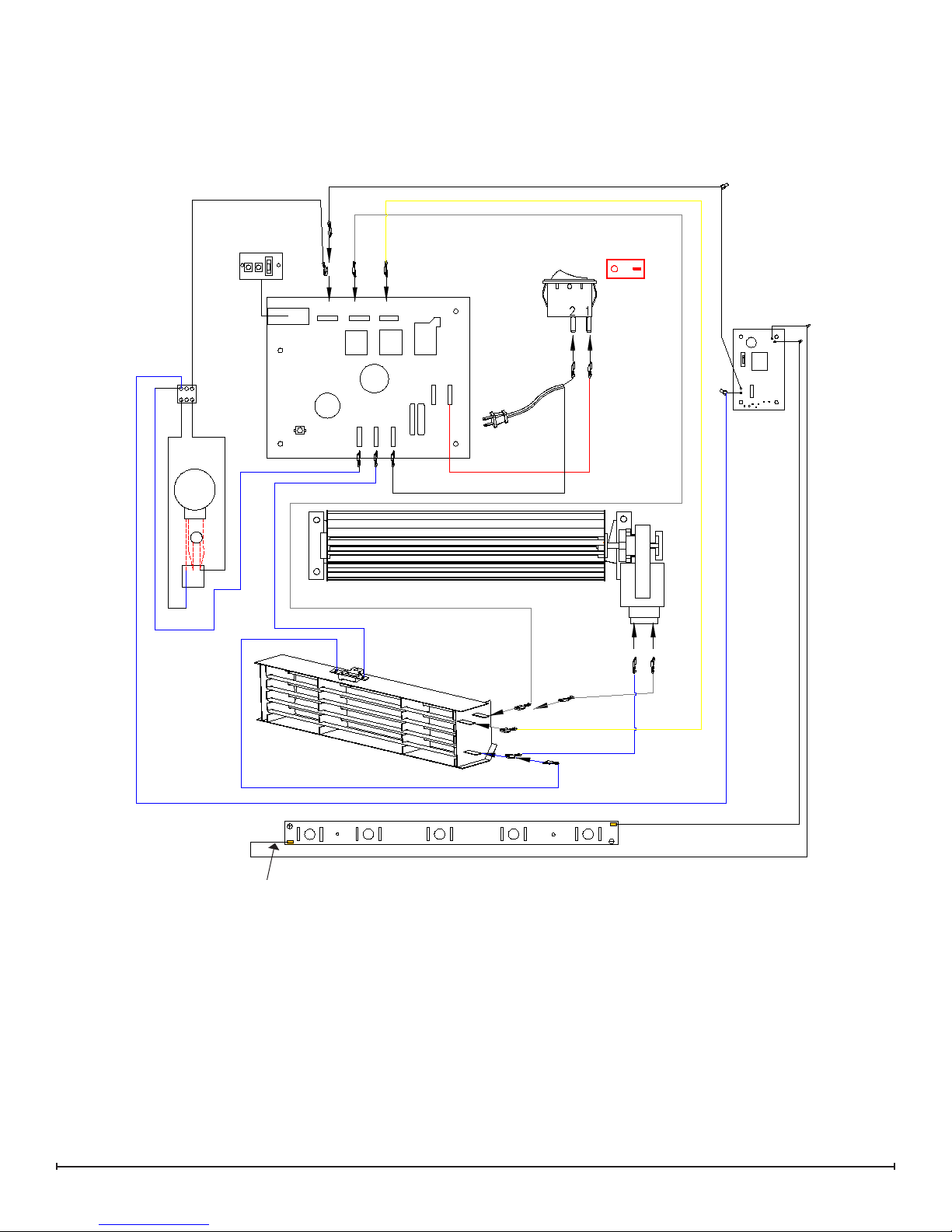
Remove the connection wire from the switchboard8.
Squeeze the mounting tabs located on either side of9.
the switchboard, with needle-nose pliers, to release the
switchboard from the side of the unit
Replace the original switchboard with the new one,10.
ensuring the correct orientation.
Reconnect the wire ensuring that it is inserted in the11.
correct orientation.
Re-assemble the remainder of the replace in reverse 12.
order from the instructions above.
CAUTION: Ensure that the remote control wire antenna
is placed so that it is not caught between any of the
screws or sheets of metal.
!NOTE: Be sure that the anges on the end panel are
positioned on the interior of the outside panel of the re-
place.
PARTIALLY REFLECTIVE GLASS
REPLACEMENT
Tools Required: Philips head screwdriver
WARNING: If the replace was operating prior to ser-
vicing, allow at least 10 minutes for light bulbs and heating
elements to cool off to avoid accidental burning of skin.
WARNING: Disconnect power before attempting any
maintenance to reduce the risk of electric shock or damage
to persons.
Remove the frame ller strip and carefully remove the 1.
glass or trim assembly from the unit.
Carefully remove the media from the front tray.2.
Wall Mount:3. Remove the replace assembly from the
wall by carefully lifting it upward, releasing it from the
anges of the wall-mounting bracket. (Figure 4).
Pedestal Mount: Carefully lay the unit face down on a
at surface and remove the six (6) screws holding the
pedestal to the unit. (Figure 5)
Carefully set the unit upright on a at working surface.4.
!NOTE: If necessary, lay a protective barrier between
the unit and your work surface, (i.e. cloth, cardboard, thick
plastic) to avoid scratching your work surface.
On the right end, with the controls, remove the seven5.
(7) screws around the outside of the end panel. (Figure
5)
Lay unit on its back and remove the remaining nine (9)6.
screws from the end panel.
Remove the end panel being careful not to add any7.
strain to the wires connecting to the controls.
Gently guide the partially reective glass out the open 8.
side of the rebox and replace with new piece.
Re-assemble the remainder of the replace in reverse 9.
order from the instructions above.
CAUTION: Ensure that the remote control wire antenna
is placed so that it is not caught between any of the
screws or sheets of metal.
!NOTE: Be sure that the anges on the end panel are
positioned on the interior of the outside panel of the re-
place.
FLAME PANEL REPLACEMENT
Tools Required: Philips head screwdriver
WARNING: If the replace was operating prior to ser-
vicing, allow at least 10 minutes for light bulbs and heating
elements to cool off to avoid accidental burning of skin.
WARNING: Disconnect power before attempting any
maintenance to reduce the risk of electric shock or damage
to persons.
Remove the frame ller strip and carefully remove the 1.
glass or trim assembly from the unit.
Carefully remove the media from the front tray.2.
Wall Mount:3. Remove the replace assembly from the
wall by carefully lifting it upward, releasing it from the
anges of the wall-mounting bracket. (Figure 4).
Pedestal Mount: Carefully lay the unit face down on a
at surface and remove the six (6) screws holding the
pedestal to the unit. (Figure 5)
Carefully set the unit upright on a at working surface.4.
!NOTE: If necessary, lay a protective barrier between
the unit and your work surface, (i.e. cloth, cardboard, thick
plastic) to avoid scratching your work surface.
On the right end, with the controls, remove the seven5.
(7) screws around the outside of the end panel. (Figure
5)
Lay unit on its back and remove the remaining nine (9)6.
screws from the end panel.