
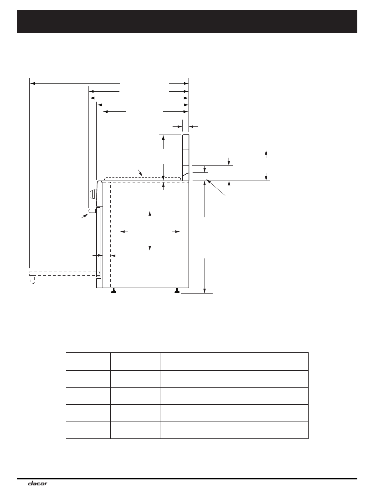
2
Important Safety Instructions
General Safety Precautions
To reduce the risk of fire, explosion, electric shock, serious injury or death when installing or using this appliance, follow
basic safety precautions, including the following:
• Read the accompanying use and care manual
completely before operating this appliance.
• Keep packaging materials away from children.
Plastic sheets and bags can cause suffocation.
• If you receive a damaged product, immediately
contact your dealer or builder. Do not install or use a
damaged appliance.
• This range must be properly installed by a qualified
installer according to these installation instructions
prior to use. The installer should show the customer
the location of the gas shut off valve and the fuse
or junction box so that they know where and how
to turn off the gas supply and electric power to the
range.
• Do not operate the range without the backguard in
place. A fire may result.
• Do not install, repair or replace any part of the range
unless specifically recommended in the literature
accompanying it. A qualified service technician
should perform all other service.
• Do not connect this range to the gas supply without
the supplied gas pressure regulator installed.
• Before performing any type of service or installation,
make sure that the gas supply and power to the
range are off.
• NEVER block or cover any slots, holes or passages
anywhere inside the oven or on the outside of the
range or cover an oven rack with materials such as
aluminum foil. Doing so blocks airflow through the
oven and cooktop and may cause carbon monoxide
poisoning or fire. See the Getting to Know Your
Range section of the use and care manual for the
location of the various air holes (slots).
• To avoid risk of fire, do not cover the broil element on
the ceiling of the oven with cookie sheets, aluminum
foil, pots, pans, etc.
• Only use this range for cooking tasks expected
of a home appliance as outlined in the literature
accompanying it. This range is not intended for
commercial use.
• DO NOT TOUCH THE SURFACES OF THE OVEN
OR COOKTOP DURING OR IMMEDIATELY AFTER
USE.
• Do not climb on any part of the appliance.
• Never leave this appliance unattended when in use.
• Do not leave children or pets alone or unattended
in the area around the range. Do not allow children
to play with the controls, pull on the handle or touch
other parts of the range.
• Do not store items of interest to children on top of or
above the range. Children could be burned or injured
while climbing on the appliance.
• Do not attempt to use this appliance in the event of a
power failure.
• Do not tamper with the controls. Do not adjust
or alter any part of the range unless specifically
instructed to do so in these instructions.
• Clean the cooktop thoroughly before operating it for
the first time.
• Keep flammable items, such as paper, cardboard,
plastic and cloth away from the burners and other
hot surfaces. Do not place such items in the oven.
Do not allow pot holders to touch hot surfaces or gas
burners.
• Do not wear loose or hanging apparel while using
the range. Do not allow clothing to come into contact
with the interior of the oven or the cooktop and
surrounding areas during and immediately after use.
• To avoid a fire hazard, do not hang flammable or
heat sensitive objects over the range.
• If the range is near a window, do not use long
curtains as window treatment. The curtains could
blow over the cooktop and create a fire hazard.
• Do not use the oven for storage.
• Make sure that all the cooktop parts are dry before
lighting a burner.
• Turn the knobs to the OFF position prior to removing
them from the valve stems.
• For your safety, do not use the oven to cook without
the convection filter installed. When the filter is not
installed, the spinning fan blades at the back of the
oven are exposed.
• Do not operate the cooktop without the knobs and
trim rings in place.
• Non-stick coatings, when heated, can be harmful to
birds. Remove birds to a separate, well-ventilated
room during cooking.
WARNING WARNING