
PAGE 4 OF 20 INSTALLATION & OPERATION MANUAL 10071 REV 4 (07/22)
SERVICE CONNECTIONS
DISCLAIMER
WATER QUALITY STATEMENT
............................
Total alkalinity ........................................ .........................6.8 - 7.3
.......................................................
concerning your water meeting these parameters.
*Failure or malfunction of this appliance due to poor water quality is not covered under warranty.
Reference www.crownsteamgroup.com for complete warranty details and instructions.
ELECTRICAL CHARACTERISTICS
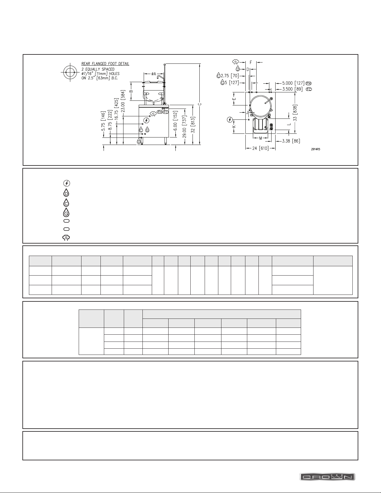
DIMENSIONS AND SPECIFICATIONS
EMT-6 12 (305) 14.5 (368) 66.13 (1680)
3.5
(89)
10.5
(267)
8.75
(222)
5.5
(140)
7
(178)
2.5
(64)
11.12
(283)
9
(229)
12
(305)
450 lbs. [204 kg.]
EMT-10 16 (406) 15 (381) 65.13 (1654) 470 lbs. [213 kg.]
EMT-12 16 (406) 17 (432) 67.13 (1705) 479 lbs. [217 kg.]
208V 220V 240V 380V 415V 480V
EMT-6
EMT-10
EMT-12
3 24 66.6 63 57.7 36.5 33.4 28.9
3 36 99.9 94.5 86.6 54.7 50.1 43.3
3 42 116.6 110.2 101 63.8 58.4 50.5
3 48 115.5 72.9 66.8 57.7
Terry System Cartridge Changes / Installation
water supply being fed to the steamer. Failure to do so can result in component damage within the steamer which is not covered under warranty.