
REC 3
INTERRUPTOR DIFERENCIAL DE RECONEXIÓN AUTOMATICA
IRCCB WITH AUTOMATIC RECLOSING SYSTEM
INTERRUPTEUR DIFFÉRENTIEL DE RECONNEXION AUTOMATIQUE
FEHLERSTROMSCHUTZSCHALTER MIT AUTOMATISCHER WIEDE-
EINSCHALTUNG
Este manual es una guía de instalación del REC 3. Para más
información, se puede descargar el manual completo en la página
web de CIRCUTOR: www.circutor.es
¡IMPORTANTE!
Antes de efectuar cualquier operación de mantenimiento, repara-
ción o manipulación de cualquiera de las conexiones del equipo
debe desconectar el aparato de toda fuente de alimentación,
tanto alimentación como de medida. Cuando sospeche un mal
funcionamiento del equipo póngase en contacto con el servicio
postventa. El diseño del equipo permite una sustitución rápida
en caso de avería.
Si se utiliza el equipo de forma no especicada por el fabri-
cante, la protección del equipo puede resultar comprometida.
1. DESCRIPCIÓN
REC 3 es un interruptor diferencial de reconexión automática en
función de la corriente de fuga de la instalación.
Existen 2 modelos:
REC 3 2 polos, para instalaciones monofásicas controladas por
un interruptor diferencial de 2 polos.
REC 3 4 polos, para instalaciones trifásicas controladas por un
interruptor diferencial de 4 polos.
Los modelos pueden ser de 30mA o 300mA en función de la co-
rriente de consigna de los diferenciales. Está característica viene
congurada por el modelo de equipo.
El equipo dispone de dos métodos de reconexión automática:
Por aislamento en los modelos de 30mA.
Por tiempos en los modelos de 300mA.
2. INSTALACIÓN
El REC 3 debe ser instalado dentro de un cuadro eléctrico o envol-
vente, con jación en carril DIN (IEC 60715).
Para realizar la jación en el carril DIN (Figura 1) :
1.- Apoyar el equipo a la parte superior del carril DIN.
2.- Balancear el REC 3 hacia abajo hasta que se ajuste a la parte
inferior del carril DIN.
3.- Comprobar que queda jado completamente.
3. CONEXIÓN
Debe conectarse a un circuito de alimentación protegido con fusi-
bles acorde con el rango de alimentación y consumo del mismo.
Debe estar provisto de un interruptor magnetotérmico o dispositivo
equivalente para desconectar el equipo de la red de alimentación.
Sección del cable de 16 - 25mm2
¡IMPORTANTE!
Antes de acceder a partes activas, inhabilite la
función de rearme automático y desconecte el dispo-
sitivo de protección principal.
En el caso de instalación del equipo con el interruptor
diferencial en estado OFF, cuando se da tensión al
cuadro, por motivos de seguridad el equipo no aplica
la secuencia de reconexión automática. Y Los LED
AUTO y REC se encienden para apagarse en unos
segundos. Es necesario realizar una reconexión ma-
nual del sistema con el cuadro en tensión.
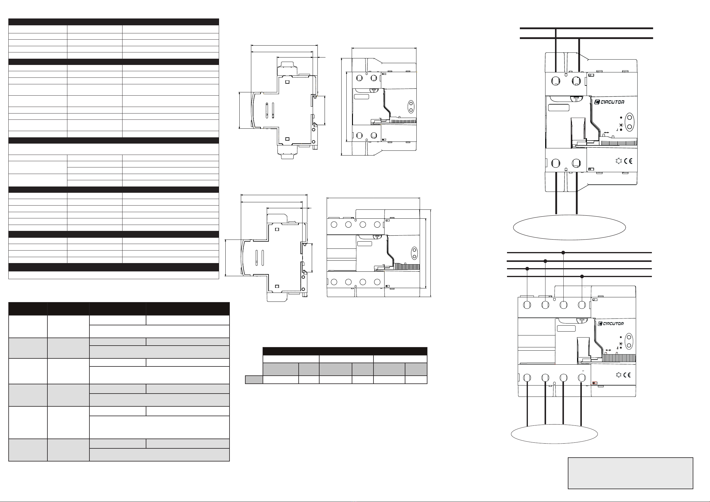
Antes de conectar el equipo a la instalación hay que conectar los
cables de alimentación y medida entre el módulo de control y el
diferencia. Para quitar la tapa de estas conexiones es necesario
presionar sobre las ventanas de sujección mediante el uso de un
destornillador de punta plana. (Figura 2)
4.-REINICIO DEL EQUIPO EN CASO DE
BLOQUEO
En caso de bloqueo del equipo realizar la siguiente secuencia de
rehabilitación:
1.- Poner el pasador selector de modo en Modo Manual (OFF).
2.- Levantar la tapa del diferencial.
3.- Poner el contacto del diferencial en modo ON.
4.- Bajar la tapa del diferencial.
5.- Poner el pasador selector de modo en Modo Automático (ON).
Nota : El pasador dispone de un oricio M2 donde se puede pasar
un precinto o candado para bloquear el acceso al diferencial y cual-
quier intento de reconexión manual.
This manual is a REC 3 installation guide. For further information,
please download the full manual from the CIRCUTOR web site:
www.circutor.com
IMPORTANT!
The unit must be disconnected from its power supply sources
(both power supply and measurement) before carrying out any
maintenance, repair or handling operations on the unit's connec-
tions. Contact the after-sales service if you suspect that there is
an operational fault in the unit. This unit has been designed for
easy replacement in case of malfunction.
If you use the unit in a way not specied by the manufacturer,
protection of the unit may be compromised.
1. DESCRIPTION
The REC 3 is an RCCB with an automatic reclosing system designed
in accordance with the leakage current of the installation.
There are 2 models:
REC 3 2 poles, for single-phase installations controlled by a
2-pole RCCB.
REC 3 4 poles, for three-phase installations controlled by a 4-pole
RCCB.
These models can be rated at 30mA or 300mA, depending on the
setpoint current of the RCCBs. Such a feature is congured by the
unit model.
The unit uses two automatic reclosing methods:
Insulation method in 30mA models.
Time method in 300mA models.
2. INSTALLATION
The REC 3 must be installed in electric panels or enclosures, with
DIN rail xing elements (IEC 60715).
To install the unit on a DIN rail (Figure 1) :
1.- Place the unit at the top of the DIN rail.
2.- Swing the REC 3 downwards until it is secured to the lower sec-
tion of the DIN rail.
3.- Make sure that it has been secured on the rail.
3. CONNECTION
Likewise, it must be connected to a fuse-protected power circuit, in
accordance with its power supply range and consumption. It must be
tted with a circuit breaker switch or equivalent device, in order to be
able to disconnect the unit from the power supply network.
Cross-section of the cable: 16 - 25mm2
IMPORTANT!
Disable the automatic rearm function and disconnect
the main protection device before handling active
parts.
If the installation of the unit is done with the RCCB
in the OFF state, when panel receives voltage the
unit will not activate the automatic reclosing system
for safety reasons. The AUTO and REC LED turn on
after a few seconds. A manual reclosing of the system
must be done on the panel with voltage.
Connect the power supply and measurement cables to the control
module and RCCB before connecting the unit to the installation.
Press on the xing windows with a at head screwdriver to remove
the cover from the top of the connections. (Figure 2)
4.-RESTART IN CASE OF BLOCKING
In case of blocking of the unit, the start-up sequence is:
1.- Put the mode selector switch in Manual Mode (OFF).
2.- Lift the RCCB cover.
3.- Put the RCCB contact in ON mode.
4.- Lower the RCCB cover.
5.- Put the mode selector switch in Manual mode (ON).
Note : The switch has an M2 hole where you can attach a seal or
a padlock to block access to the RCCB and any other attempts at
manual reclosing.
Ce manuel est un guide d’installation du REC 3. Pour une plus
ample information, le manuel complet peut être téléchargé sur le
site web de CIRCUTOR : www.circutor.com.
IMPORTANT!
Avant d’effectuer toute opération de maintenance, réparation
ou manipulation de l’une quelconque des connexions de
l’équipement, vous devez déconnecter l’appareil de toute source
d’alimentation, tant d’alimentation que de mesure. Lorsque vous
suspectez un mauvais fonctionnement de l’équipement, contactez
le service après-vente. La conception de l’équipement permet son
remplacement rapide en cas de panne.
Si l’équipement est utilisé sous une forme non spéciée par le
fabricant, la protection de l’équipement peut être compromise.
1. DESCRIPTION
REC3 est un interrupteur différentiel à reconnexion automatique en
fonction du courant de fuite de l’installation.
Il existe 2 modèles :
REC 3 2 pôles, pour installations monophasées contrôlées par un
interrupteur différentiel à 2 pôles.
REC 3 4 pôles, pour installations monophasées contrôlées par un
interrupteur différentiel à 4 pôles.
Les modèles peuvent être de 30mA o 300mA en fonction du courant
de consigne des différentiels. Cette caractéristique est congurée
par le modèle de l’équipement.
L’équipement dispose de deux méthodes de reconnexion automa-
tique :
Par isolement sur les modèles de 30 mA.
Par temps sur les modèles de 300 mA.
2. INSTALLATION
Le REC3 doit être installé sur un tableau électrique ou une envelop-
pe, avec xation dans le couloir DIN (IEC 60715).
Pour réaliser la xation dans le couloir DIN (Figure 1) :
1.- Appuyer l’équipement sur la partie supérieure du couloir DIN.
2.- Balancer le REC 3 vers le bas jusqu’à ce qu’il soit ajusté à la partie
inférieure du rail DIN.
3.- Vérier qu’il est complètement xé.
3. CONNEXION
Il faut se connecter à un circuit d’alimentation protégé avec des
fusibles en accord avec le rang d’alimentation et la consommation
de ce dernier. Il doit être pourvu d’un interrupteur magnétothermique
ou dispositif équivalent pour pouvoir déconnecter l’équipement du
réseau d’alimentation.
Section du câble de 16 - 25 m2
IMPORTANT!
Avant d’accéder aux partes actives, inhabilitez la
fonction de réarmement automatique et déconnectez
le dispositif de protection principale.
Dans le cas d’installation de l’équipement avec
l’interrupteur différentiel en état OFF, lorsque le ta-
bleau est mis sous tension, l’équipement n’applique
pas la séquence de reconnexion automatique pour
des raisons de sécurité. Et les LED AUTO et REC
sont allumés pour s’éteindre en quelques secondes.
Il faut réaliser une reconnexion manuelle du système
avec le tableau sous tension.
Avant de connecter l’équipement à l’installation, il faut connecter les
câbles d’alimentation et de mesure entre le module de contrôle et le
différentiel. Pour retirer le couvercle de ces connexions, il faut exer-
cer une pression sur les fenêtres de xation en utilisant un tournevis
à pointe plate. (Figure 2)
4.-REINITIALISATION DE L’EQUIPEMENT EN CAS
DE BLOCAGE
En cas de blocage de l’equipement, réaliser la séquence suivante
de réhabilitation:
1.- Placer le goujon sélecteur de mode en Mode Manuel (OFF).
2.- Soulever le couvercle du différentiel.
3.- Mettre le contant du différentiel en mode ON.
4.- Baisser e couvercle du différentiel.
5.- Placer le goujon sélecteur de mode en Mode Automatique (ON).
Note : Le goujon dispose d’un orice M2 où un scellé ou un cadenas
peut être placé pour bloquer l’accès au différentiel et toute tentative
de reconnexion manuelle.
Diese Anleitung ist eine kurze Installationsanleitung des REC 3.
Für zusätzliche Informationen können Sie die vollständige Anlei-
tung von der CIRCUTOR-Webseite herunterladen:
www.circutor.com
WICHTIG!
Vor Wartungsarbeiten, Reparaturen oder Arbeiten an den Geräteanschlüs-
sen muss das Gerät von allen Stromquellen, sowohl Stromversorgung
als auch Messstrom, getrennt werden. Setzen Sie sich bitte bei Verdacht
auf Störungen mit dem Kundendienst in Verbindung. Die Bauweise des
Gerätes ermöglicht im Falle von Störungen einen schnellen Austausch.
Wenn das Gerät nicht auf die vom Hersteller vorgegebene Art und
Weise eingesetzt wird, kann der Schutz des Gerätes beschädigt werden.
1. BESCHREIBUNG
Beim REC 3 handelt es sich um einen Fehlerstromschutzschalter mit
automatischer Wiedereinschaltung entsprechend dem Fehlerstrom
der Anlage.
Es gibt 2 Modelle:
REC 3 2-polig, für einphasige Anlagen mit Überwachung durch
einen 2-poligen Fehlerstromschutzschalter.
REC 3 4-polig, für Drehstromanlagen mit Überwachung durch
einen 4-poligen Fehlerstromschutzschalter.
Je nach Sollstrom der Fehlerstromschutzschalter stehen Modelle für
30 mA oder 300 mA zur Verfügung. Diese Eigenschaft ist abhängig
von der Konguration des Gerätemodells.
Das Gerät verwendet zwei unterschiedliche Systeme zur Wieder-
einschaltung:
Anhand des Isolationswiderstandes bei Modellen 30 mA.
Anhand der Zeiten bei Modellen 300 mA.
2. INSTALLATION
Der REC3 muss in einer Schalttafel oder einem Gehäuse auf einer
DIN-Schiene (IEC 60715) installiert werden.
Zur Befestigung auf der DIN-Schiene (Abbildung 1) :
1.- Setzen Sie das Gerät an der Oberkante der DIN-Schiene an.
2.- Kippen Sie den REC 3 nach unten, bis die Unterkante der
DIN-Schiene einrastet.
3.- Überprüfen Sie den ordnungsgemäßen Sitz des Fehlerstrom-
schutzschalters.
3. ANSCHLUSS
Der Anschluss muss an eine Stromversorgungsschaltung erfolgen,
die entsprechend ihrer Leistungsaufnahme und ihrem Verbrauch
geschützt ist. Es muss ein Leistungsschutzschalter oder ein entspre-
chender Schalter vorhanden sein, mit dem das Gerät vom Stromnetz
getrennt werden kann.
Kabelquerschnitt von 16 - 25 mm2
WICHTIG!
Vor der Durchführung von Arbeiten an Strom führen-
den Teilen muss die Funktion der automatischen
Wiedereinschaltung unwirksam gemacht und das
Gerät von der Hauptschutzvorrichtung getrennt
werden.
Für den Fall, dass das Gerät mit dem Fehlerstrom-
schutzschalter in Position OFF installiert wird, wendet
das Gerät, wenn der Schaltschrank mit Spannung
versorgt wird, aus Sicherheitsgründen die Sequenz
der automatischen Wiedereinschaltung nicht an. Die
LEDs AUTO und REC leuchten auf und schalten sich
nach einigen Sekunden aus. Es ist erforderlich, einen
manuellen Neuanschluss des Systems an den unter
Spannung stehenden Schaltschrank durchzuführen.
Bevor das Gerät an eine Anlage angeschlossen wird, müssen
die Strom- und Messkabel zwischen dem Steuermodul und dem
FI-Schutzschalter angeschlossen werden. Die Abdeckung der
Anschlüsse wird entfernt, indem sie an den Öffnungen mit einem
Schlitzschraubendreher aufgehebelt wird. (Abbildung 2)
4.-NEUSTART DES GERÄTS IM FALL DES AUS-
LÖSENS
Im Fall des Auslösens des Geräts zum Wiedereinschalten die
folgende Sequenz durchführen:
1.- Den Betriebsart-Rastschalter auf Betriebsart Manuell (OFF)
stellen.
2.- Die Abdeckung des Fehlerstromschutzschalters anheben.
3.- Den Kontakt des Fehlerstromschutzschalters auf Betriebsart
ON stellen.
4.- Die Abdeckung des Fehlerstromschutzschalters absenken.
5.- Den Betriebsart-Rastschalter auf Betriebsart Automatisch (ON)
stellen.
Hinweis: Am Raster ist ein M2-Loch vorhanden, das mit einer
Plombe oder einem Vorhängeschloss gesichert werden kann, um
den Zugriff auf den Fehlerstromschutzschalter und jeden anderen
Versuch des manuellen Wiedereinschaltens zu unterbinden.
Figura 1/ Figure 1
1
2
N
N
Figura 2/ Figure 2