
31-2000694 Rev. 2 9
Installation Instructions
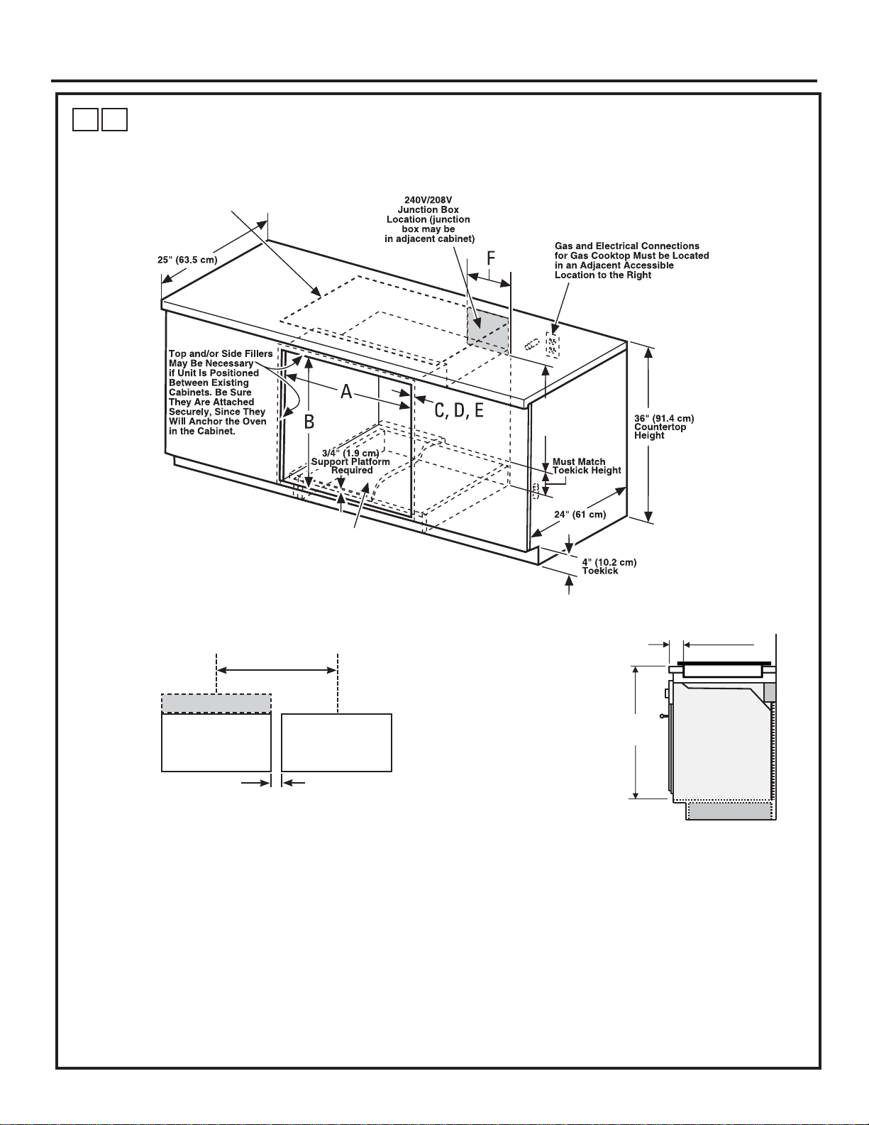
4ELECTRICAL REQUIREMENTS
WARNING This appliance must be properly
grounded.
WARNING To prevent fire or shock, do not use
an extension cord with this appliance.
WARNING To prevent shock, remove house
fuse or open circuit breaker before beginning
installation.
WARNING Improper connection of aluminum
house wiring to copper leads can result in an
electrical hazard or fire. Use only connectors designed
for joining copper to aluminum and follow the
manufacturer’s recommended procedure closely.
We recommend you have the electrical wiring and
hookup of your appliance connected by a qualified
electrician. After installation, have the electrician show
you how to disconnect power from the appliance.
You must use a single-phase, 120/208 VAC or
120/240 VAC, 60 Hertz electrical system. If you
connect to aluminum wiring, properly installed
connectors approved for use with aluminum wiring
must be used.
Effective January 1, 1996, the National Electrical
Code requires that new construction (not existing)
utilize a four-conductor connection to an electric oven.
When installing an electric oven in new construction,
a mobile home, recreational vehicle or an area where
local codes prohibit grounding through the neutral
conductor, refer to the section on four-conductor
branch circuit connections.
Check with your local utilities for electrical codes which
apply in your area. Failure to wire your oven according
to governing codes could result in a hazardous
condition. If there are no local codes, your oven must
be wired and fused to meet the National Electrical
Code, NFPA No. 70 – latest edition, available from the
National Fire Protection Association.
4ELECTRICAL REQUIREMENTS
(Cont.)
This appliance must be supplied with the proper voltage
and frequency and connected to an individual, properly
grounded branch circuit, protected by a circuit breaker or
fuse. See the rating plate located on the underside of the
control panel to determine the rating of the product.
Use the chart below to determine the minimum
recommended dedicated circuit protection:
DO NOT shorten the flexible conduit. The conduit strain
relief clamp must be securely attached to the junction
box and the flexible conduit must be securely attached
to the clamp. If the flexible conduit will not fit within the
clamp, do not install the oven until a clamp of the proper
size is obtained.
The 3 power leads supplied with this appliance are
suitable for connection to heavier gauge household
wiring. The insulation of these 3 leads is rated for
temperatures much higher than the temperature rating
of the household wiring. The current-carrying capacity
of the conductor is governed by the wire gauge and the
temperature rating of the insulation around the wire.
KW Rating
240V KW Rating
208V
Recommended
Circuit Size
(Dedicated)
.: .: 20 Amp
4.9 KW–7.2 KW 4.2 KW–6.2 KW 30 Amp
7.3 KW–9.6 KW 6.3 KW–8.3 KW 40 Amp
9.7 KW–12.0 KW 8.4 KW–10.4 KW 50 Amp
Rating plate is located on the underside
of the control panel
Rating Plate
Location