
2
Installation & Service Flexibility
ThecastironsectionaldesignoftheV9boilermakesiteasyto
maneuver through doorways and into the boiler room. In addi-
tion to being shipped as loose sections, the boiler is available
with factory-assembled sections or as a completely packaged
andre-testedunit.Packagedunits,fastenedtoasteelskid,
areeasilymaneuveredthroughstandard36"x80"doorways.
•Hassle-free Section Assembly
V9boilersectionshavereinforcedlugsthatareused
to assemble the sections with individual draw rods
resulting in fast, strain-free assembly.
The sections can be assembled using two common
toolsÑ a 3/4" drive ratchet with a 1-1/16" deep socket
and wrench. The sections are surface ground to ensure
smooth surface mating. An elastic sealant and fiberglass
rope are used on all section joints for a completely sealed
and pressure-tight assembly.
•Extensive Testing Methods
Each boiler section is hydrostatically tested at 2-1/2 times
theratedworkingpressureatthefoundry.Factory
assembled sections are tested at 1.5 times the rated
working pressure.
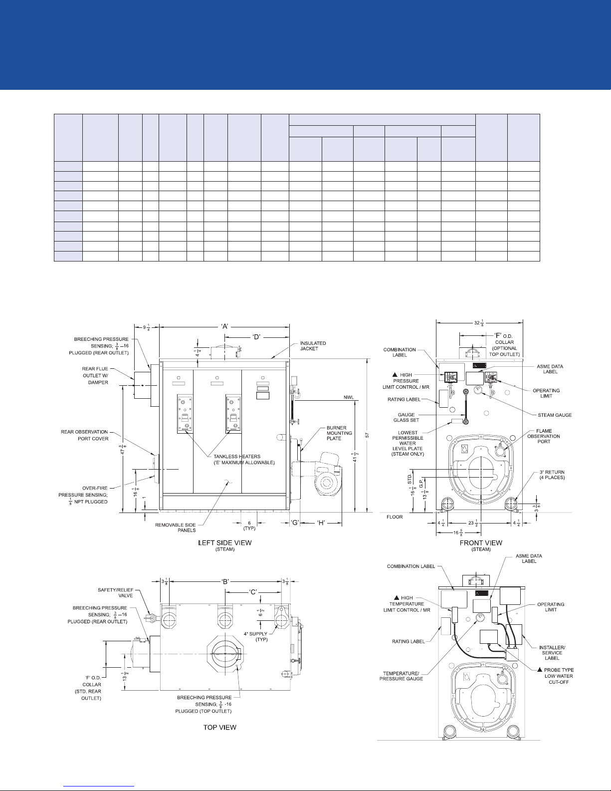
•Rear or Top Venting
Asaforceddraftboiler,theV9
provides optimum draft for controlled
efficiency, eliminating the need for
high chimneys or induced draft fans.
AuniquefeatureoftheV9boilerisit
can be vented from the rear or the
top. This enables easy chimney or
sidewall venting for maximum
installation flexibility.
Top outlet venting saves floor space
and reduces installation time and
materials. A plugged tapping is
provided to take flue outlet pressure
readings.
Available in ten sizes with gross output ratings from 347 to
1900MBH,theV9Seriesresgas,oilorcombinationgas/oil
and is available equipped with either steam or water trim. The
productmeetstheenergyefciencyrequirementsofASHRAE
90.1withcombustionefcienciesupto86%.
Cast iron construction, ease of assembly, two venting options,
andstringenttestingmethodsmaketheV9Seriesboilerby
Burnham Commercial your commercial heating solution.
American-Made Cast Iron ConstructionÐ
BC25-HSi
Burnham CommercialÕ s unique
BC25-HSicastironhasanextremely
high silicon content, making it
stronger and more flexible. It offers
better thermal shock resistance and
greater heat transfer capabilities than
othercastironproducts.BC25-HSi's
properties allow Burnham Commercial
to maintain the highest level of quality
from start to finish, and provide a
product that is optimized for hydronic
heating applications
.
•Manufactured with Quality
Cast iron sections are poured at
BurnhamFoundry,LLCinZanesville
Ohio.Thefoundryusesstate-of
the-art technology and production
techniques which ensures the availability of high quality
boiler sections.
•Cast Iron Nipple Difference
Whilegasketsusedbyother
manufacturers can break down
from oils and contaminants, the
V9'scastironnipplesremain
unaffected, ensuring long life and
eliminating costly repairs.
TheV9sectionassemblyincludesprecisionmachinedcast
iron nipples that expand and contract along with the
sections they join, providing integrity to the entire
assembly. Additionally, cast iron nipples resist boiler flue
gases and petroleum based chemicals, including corrosion
inhibitors, pump lubricants and antifreeze.
Your Commercial Heating Solution!
Cast Iron Commercial Water or Steam Boiler
Cast Iron Commercial Water or Steam Boiler
V9 Series