All information contained herein
reproduced, or used as the basis
for manufacture or sale without
This drawing may not be copied,
has been previously established.
to the extent the information
that is not generally known
property of AMX Corporation.
NOTICE: This drawing is the
shall be confidential except
written permission. PROJECTION
THIRD ANGLE
REL DATE
TOLERANCE ON DECIMAL DIMENSIONS: XX = .010
SURFACE FLATNESS .003 TIR PER LINEAR INCH.
FRACTIONAL DIMENSIONS INCLUDING HOLES: +/- 1/64
DO NOT SCALE THIS DRAWING.
TOLERANCE ON HOLE DIAMETERS:
OVER .500
.250 TO .500
UNDER .250 ú
ALL DIMENSIONS IN INCHES.
ANGLES: +/- 1.0°
= +.008 -.005
= +.006 -.005
XXX = .005
= +/- .005 ENGINEER
PROD ENGR
ENGR SERV
UNLESS OTHERWISE SPECIFIED:
DRAWN
B
SCALESIZE DWG. NO.
REL APPR REV APPR
SHEET
REV.QUALITY
MATL SUP
DATEDESCRIPTIONREV ECN
REVISIONS
APPROVED
TM
PICTORIAL,
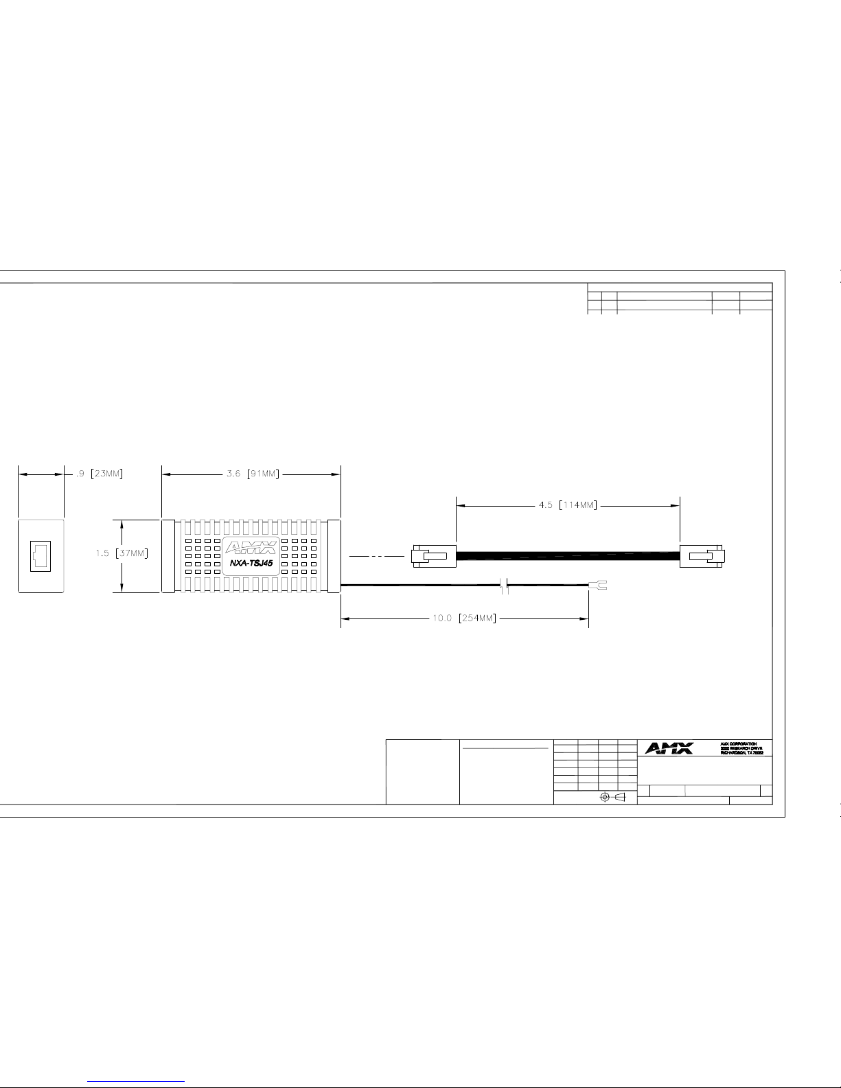
NXA-TSJ45,
NODE SURGE PROTECTOR
95-0676
95-0676-A
A
FULL
1 OF 1
A5247 RELEASE TO PRODUCTION 8/13/03
DAS 7/25/03
DB 8/13/03
PL 8/13/03
AK 8/13/03
KL 8/13/03
AK 8/13/03