
2
is committed to building a quality product
in an environmentally friendly manner. Our processes are
tightly controlled and closely monitored. We have achieved
certications in ISO 9001 for quality assurance, ISO 14001
for environmental management, and OHSAS 18001 for oc-
cupational health and safety from Lloyd’s Register Quality
Assurance.
NOTE
!CAUTION
Important Safety Instructions
Warnings and safety instructions appearing in this guide
are not meant to cover all possible conditions and situa-
tions that may occur. Common sense, caution, and care
must be exercised when installing, maintaining, or operat-
ing this appliance.
Recognize Safety Symbols,
Words, and Labels.
!WARNING
WARNING-Hazards or unsafe practices with
high probability of personal injury or property / prod-
uct damage.
CAUTION-Hazards or unsafe practices which could
result in personal injury or property or product damage.
NOTE-Important information to help assure a problem
free installation and operation.
CONTENTS
Unpacking the refrigerator/freezer ......................................3
Tools required ..................................................................3
Warranty registration ...........................................................4
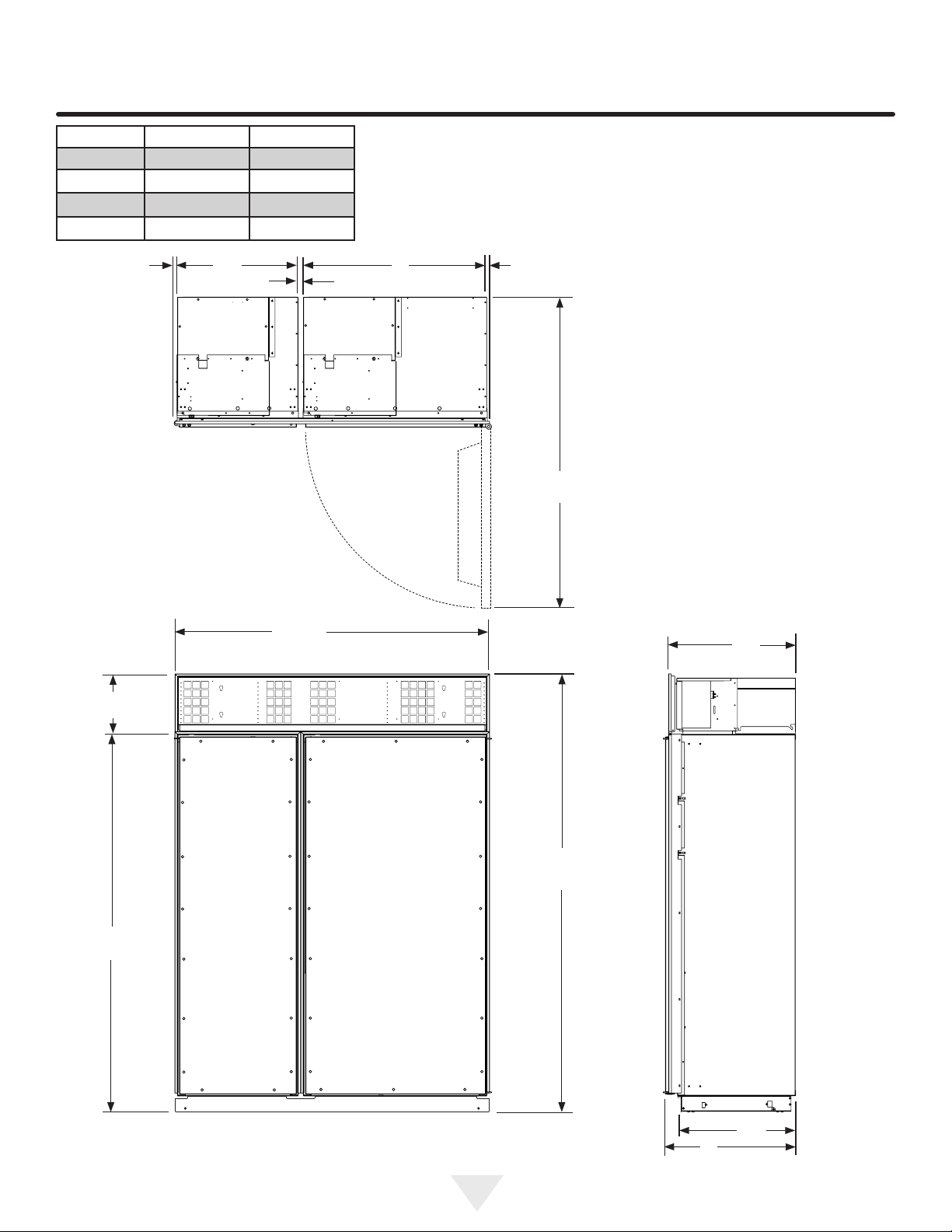
Dimensions for M(XX)CSS with Solid Doors .......................5
Dimensions for M(XX)CSS with Solid Overlay Doors ...........6
Dimensions for M(XX)CSS with Solid Freezer Door and Glass
Refrigerator Door ............................................................7
Dimensions for M(XX)CSS with Solid Freezer Overlay Door
and Glass Refrigerator Overlay Door ............................8
Dimensions for MPRO(XX)CSS with Solid Doors .................9
Dimensions for MPRO(XX)CSS with Solid Freezer Door and
Glass Refrigerator Door ................................................10
Preinstallation considerations ............................................11
Rough in opening ..........................................................11
Select location ...............................................................11
Electrical requirements .................................................12
Plumbing requirements .................................................12
Installing the cabinet .........................................................13
Corner installation .........................................................13
Anti tip bracket considerations .......................................14
Leveling the unit ................................................................15
Installing two units side by side ...........................................16
Installing the power module ..............................................17
Placing power module on top of cabinet .........................17
Power module electrical connections .............................17
Installing Ice Maker Water Valve .........................................18
Installing the grille .............................................................19
Custom Grille and Door Overlay Panels ............................22
Mounting Grille Facia Panel .........................................22
Overlay Door Panel Instructions ....................................23
Hinge and gasket adjustments ..........................................25
Installing side panels .........................................................26
Installing the kickplate .......................................................26
Installation checks ............................................................27
Common installation errors ..............................................27
Use and care guide ...........................................................27
Using your refrigerator ....................................................27
Using your freezer ..........................................................28
Temperatures ..................................................................29
Defrosting .......................................................................29
Cleaning .........................................................................29
Condenser cleaning procedure ......................................29
Energy saving tips .............................................................30
Product sounds .................................................................30
Troubleshooting guide ......................................................31
Obtaining service ..............................................................31
Warranty ...........................................................................32