
Dunatech is a cast iron sectional boiler for solid fuel firing which is constructed with new patent secondary air system
principle providing a clean burn and low emissions . It is designed for hot water heating systems, should not be used for
direct sanitary water supply.
Thanks to its cast iron body design with flexible casting technology, your boiler is quite resistant to corrosion that could
be caued by low return water and flue gas temperatures respectively, and high water content of the fuel being charged.
Dunatech boiler will give higher heating surface area and water efficiencies among similar products in the market,
as well as lower pollutants and flue gas temperatures released from the chimney. Those features will result in save in
energy usage.
Dunatech boiler can be used either in forced or natural water circulation systems thanks to its large waterways inside
the boiler and medium sized delivery and return connections.
You can fire different solid fuels whose specifications are given further in this manual. As calorific values of solid fuel
types differ from each other, the output power of the boiler will vary between a maximum and a minimum range
specified.
Delivery term
Dunatech boiler is delivered in two packges:
1. Boiler pack, holds cast iron body assembled and tested at the factory.
2. Accessory pack, holds sheet metal jacket, body insulation, thermostatic controller, primary air damper, cleaning
brush, ash scra
oker.
Thank you for purchasing Dunatech boiler. Please read this manual carefully before installation and operation of your
product, and keep it during the whole operation life. Do not touch or interfere any part of the product other than those
allowed. The installation, maintenance and service of this boiler requires skilled technicians. For the installation of the
boiler and proper room selection, installation of water circuit, chimney design, this manual and mandatory regulations
must be considered.
3
b us , as sc ape , ue po e
Optional accessory: A safety heat exchanger kit is delivered upon special request. This kit holds an copper heat
exchanger against excessive heat accumulation inside the boiler, a safety valve to activate the heating system at
high water temperatures, and auxillary accessories for installation.
Whether the hydraulic circuit is open vented or pressurised, this safety heat exchanger system should be utilized within
the system for meeting the regulations of related European standard for this product, as well as the safety of whole
heating installation and the boiler itself.
Safety warnings
Please, follow the safety instructions before installation and operation of Dunatech boiler:
* Dunatech boiler must be connected to an appropriate chimney whose construction complies with the instructions
given further in this manual, and mandatory regulations.The chimney must perform the requested draft values for
related boiler model. Your boiler should not be fired unless the chimney connection is made, and there is enough
draft for combustion.
* Always allow enough amount of fresh air in the boiler room. Refer to the instructions for room arrangement.
* Do not install the boiler in a space, shared or used by people, or in a place with direct openings to a living room.
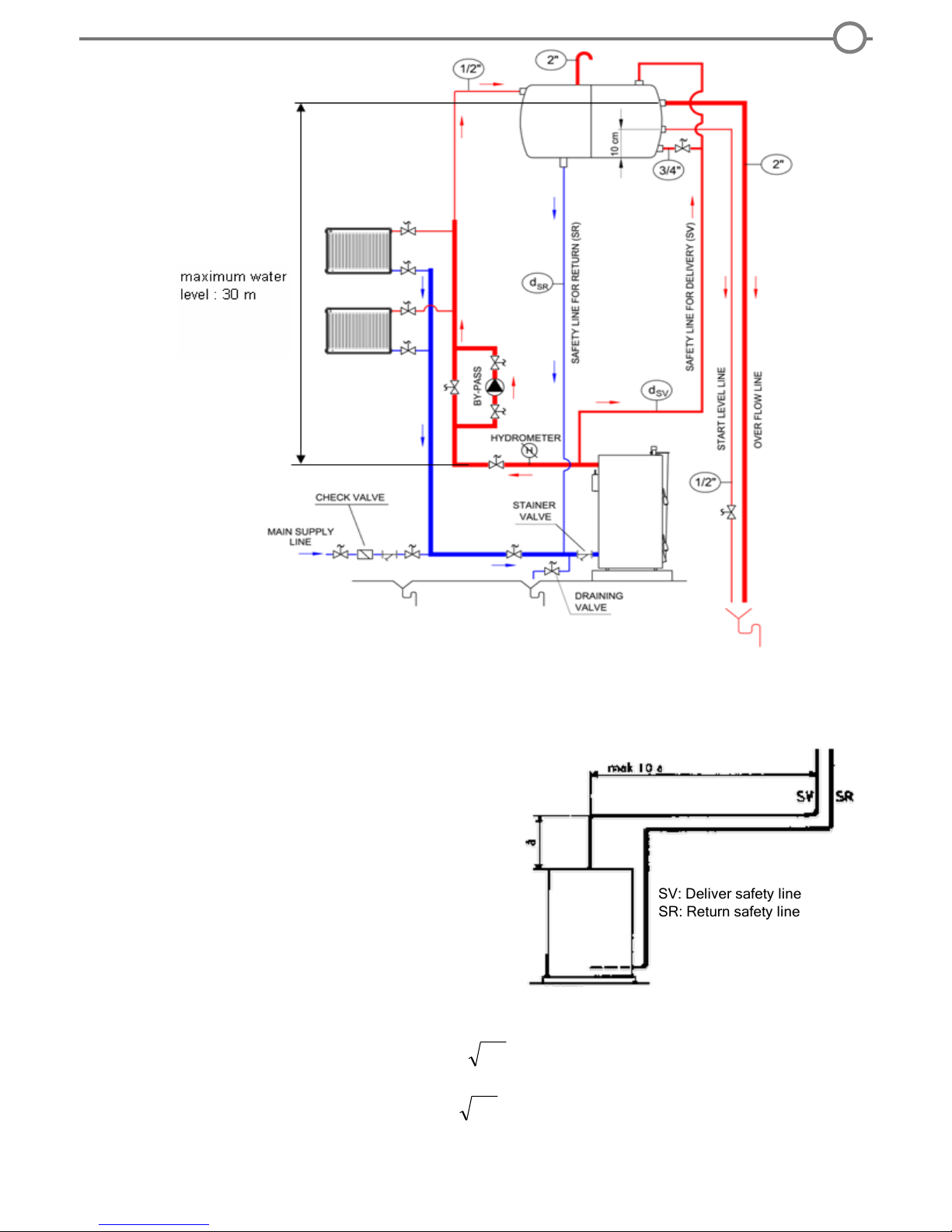
* The boiler must be installed in an open vented hydraulic circuit unless the hydraulic circuit is equipped with safety
heat exchnager kit according to the directions given further in this manual.
* Do not drain water in hydraulic circuit unless in case of maintenance or risk of freezing. 15% of anti-freezer should be
added to hydraulic circuit to avoid freezing danger. In case of cast iron radiators, the hydraulic circuit should be washed
* Do not feed cold water directly to the boiler overheated by any reason. This may result in cracks on boiler sections.
* Do not fire boiler with front doors open. In case operation with fanr, never open front doors without switching the fan off.
* The system design must provide water flow rates commensurate with boiler output and the temperature difference
between flow and return should not exceed 20 C.
* Any irregular electricity installations in boiler room should be replaced
* Water levels should be checked regularly and any leakages corrected in order to keep system water make-up to a
minimum, because excessive make-up will lead to salt deposits forming in the boiler waterways causing local
overheating and damage to the boiler sections.
* The quality of water is important. The recommended hardness of water: 1-3 mol/m3 (1 mol/m3=5.6 dH), PH:8-9.5
*
The boilers should be installed directly onto a smooth level floor of non
combustible material. It is recommended that
Thank you for purchasing Dunatech boiler. Please read this manual carefully before installation and operation of your
product, and keep it during the whole operation life. Do not touch or interfere any part of the product other than those
allowed. The installation, maintenance and service of this boiler requires skilled technicians. For the installation of the
boiler and proper room selection, installation of water circuit, chimney design, this manual and mandatory regulations
must be considered.
3
the hight of the plinth should be at least 50 mm, and sized larger than the dimensions of casing of the boiler. This plinth
is kept the boiler from water on the floor.
* If the boiler is going to be installed in an old heating system, the system should washed away and cleaned from any
particules before Dunatech is attached