
OVERVIEW
3
CommLink 5 Technical Guide
CommLink 5 Overview
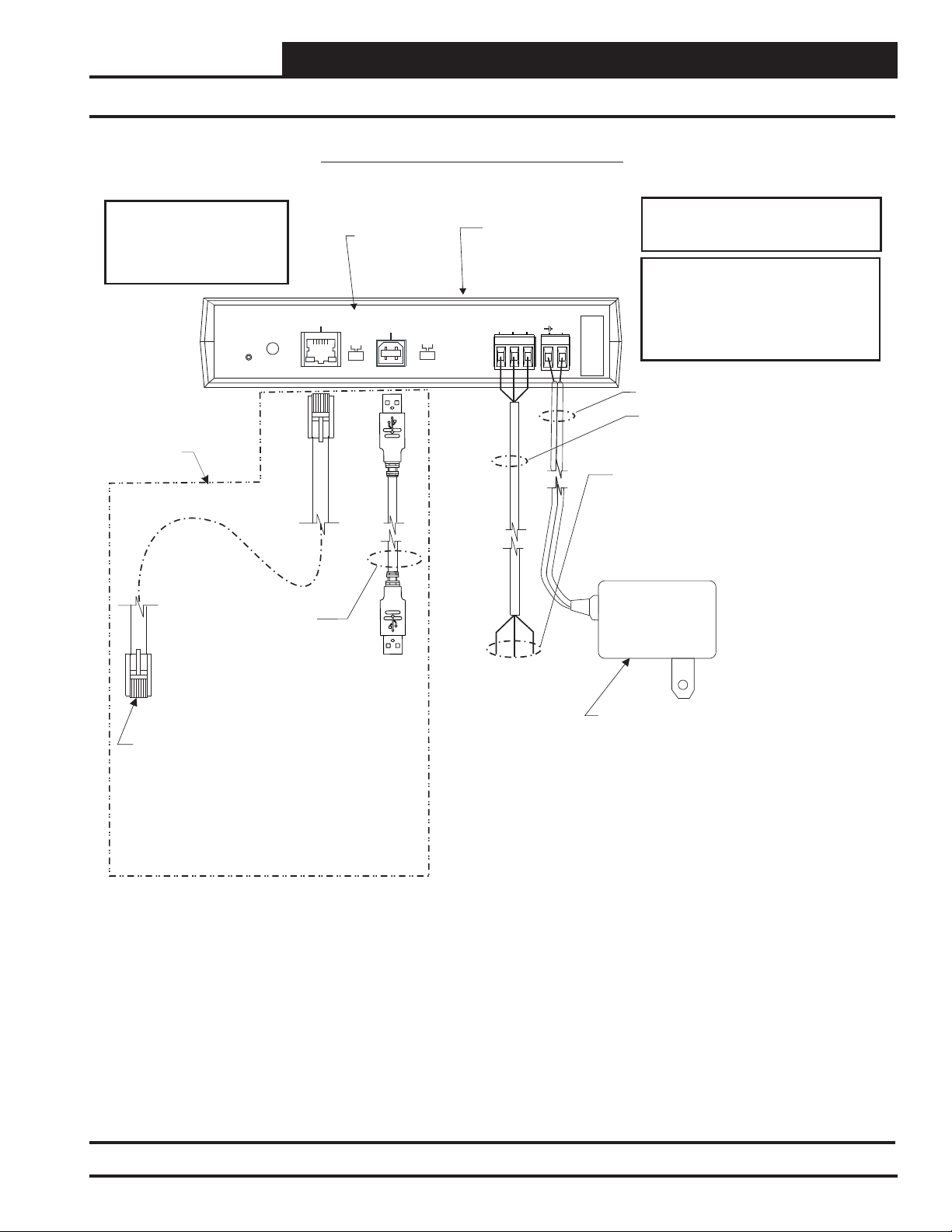
The OE361-13 (V32950) CommLink 5 is used to transfer commu-
nications between controllers or local loops on your control system.
It can also be used as an interface for connection of a computer to
your system.
The CommLink 5 provides communication with the control system
through any computer that is running Prism 2 software. For remote
communications, an IP Module Kit can be installed for LAN and
Internet connections.
Optional IP Module Kit
The OE415-02 (R66770) IP Module Kit, when installed and confi g-
ured in the CommLink 5 communication interface, provides TCP IP
Internet and/or intranet connection for Ethernet networked computer
systems, allowing them to communicate with your control system.
The IP Module Kit consists of the IP Module and a 10 ft. long CAT5
Ethernet crossover cable.
Using standard TCP/IP Protocol, with WattMaster’s Prism 2 soft-
ware, you are able to monitor and confi gure your controllers without
a modem or a direct connection from a PC. Utilizing existing rout-
ers, proxies, or fi rewalls allows a PC running Prism 2 to connect to
a controller in a remote accessible location or building. Several IP
connection profi les can be created to facilitate monitoring several
CommLink 5’s with IP Module Kits installed on individual sites.
Installing CommLink 5 ONLY
When you are using the CommLink 5 in an application without a
computer or IP Module, follow Steps 1-3 in the Quick Guide on
page 4.
WARNING: If you are replacing an earlier version of the Com-
mLink with a CommLink 5, be aware that the R(+) and T(-)
terminals on the communications terminal block are reversed
from all previous models of the CommLink 5. You must always
confi rm that the polarity is correct when wiring 24 VAC power
to the CommLink power terminal block or serious damage to
the product will result.
System Requirements
To program the CommLink 5 to work with Prism 2, you will need:
Standard Items (Required)
• CommLink 5 with USB cable and power adapter
• A PC with an Ethernet communications port or USB
port (supplied by others)
• USB drivers on CD-ROM (supplied and also
downloadable from orioncontrols.com)
• Microsoft Windows® 2000, Vista, 7, 8, or 10
(must be installed on the computer you are going to use)
• Prism 2 software, version 4.0.3 or later (can be
downloaded from orioncontrols.com)
Optional Items
• IP Module Kit that comes with Ethernet RJ-45
Crossover CAT 5, 10 ft. long cable for LAN, and Internet
remote communications
• MiniLink, MiniLink PD, or MinkLink PD 5
NOTE: AAON Controls Support cannot troubleshoot internal
PC and/or Windows®-based operating system prob-
lems.
General Information